Mehr anzeigen zum Thema Außenprovision
Außenprovision
3 % vom Kaufpreis + MwSt. = 3,57 %
verdient und fällig bei Beurkundung
vom Käufer an IBD zu zahlen
verdient und fällig bei Beurkundung
vom Käufer an IBD zu zahlen
Mehr anzeigen zum Thema Beschreibung
Beschreibung
Es handelt sich um ein Reihenmittelhaus in Massivbauweise, Baujahr 1977
modern ausgestattet, über 4 Etagen/Wohnebenen geschickt aufgeteilt
Von der wunderschönen Terrasse im Hochparterre hat man einen entspannten Blick ins Grüne und den gepflegten, kleinen, hübsch angelegten Garten.
modern ausgestattet, über 4 Etagen/Wohnebenen geschickt aufgeteilt
Von der wunderschönen Terrasse im Hochparterre hat man einen entspannten Blick ins Grüne und den gepflegten, kleinen, hübsch angelegten Garten.
Mehr anzeigen zum Thema Ausstattung Beschreibung
Ausstattung Beschreibung
Das Haus ist räumlich aufgeteilt wie folgt:
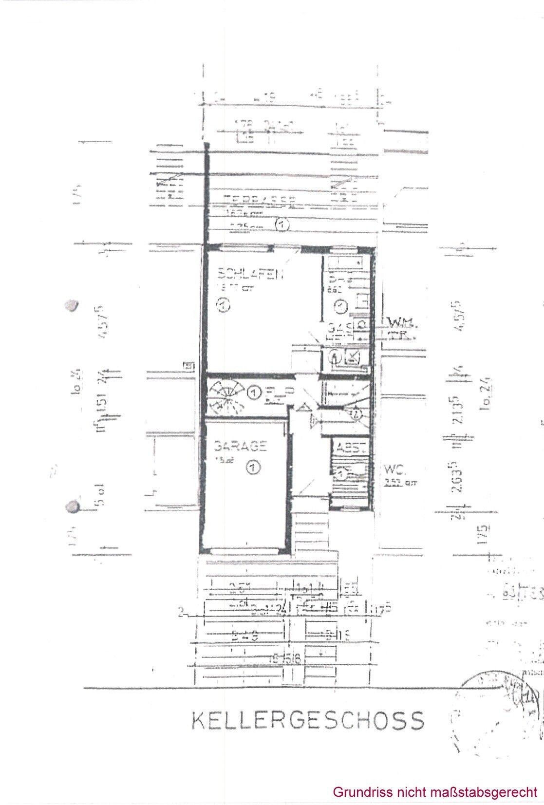
Wohnebene 1 = KELLERGESCHOSS (ausgebaut) auf Garagen-Niveau:
Eingangsbereich mit Garderobe
WC
Schlafzimmer mit großen Fenstern
Tageslichtbad
Abstell-/Heizungsraum
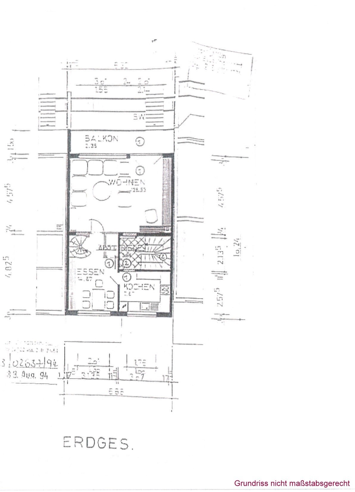
Wohnebene 2 = ERDGESCHOSS (Hochparterre):
Diele mit Treppenhaus
offene Küche
Wohnzimmer mit Essbereich
Treppe zum Balkon in Erdgeschoss
Wohnebene 3 = OBERGESCHOSS:
3 Schlafzimmer
1 Bad mit Wanne
1 WC
Wohnebene 4 = DACHGESCHOSS
ausgebaut mit Küche, Wohn- und Schlafbereich und separatem Badezimmer mit Dusche
Darüber befindet sich noch ein Spitzboden, erreichbar über eine Einschubtreppe
KURZE AUSSTATTUNGSMERKMALE:
Bodenbeläge:
überwiegend Parkett
Vinyl in Küche 1.OG
Fliesen im Flur KG, Bäder/WC, DG
Fenster mit Rolläden
elektrische Sonnenmarkise
Jablotron-Alarmanlage.
Zum Haus gehört die nach vorn sichtbare Garage mit elektrischem Rolltor.
Weitere Baubeschreibung auf Anfrage.
Wohnebene 1 = KELLERGESCHOSS (ausgebaut) auf Garagen-Niveau:
Eingangsbereich mit Garderobe
WC
Schlafzimmer mit großen Fenstern
Tageslichtbad
Abstell-/Heizungsraum
Wohnebene 2 = ERDGESCHOSS (Hochparterre):
Diele mit Treppenhaus
offene Küche
Wohnzimmer mit Essbereich
Treppe zum Balkon in Erdgeschoss
Wohnebene 3 = OBERGESCHOSS:
3 Schlafzimmer
1 Bad mit Wanne
1 WC
Wohnebene 4 = DACHGESCHOSS
ausgebaut mit Küche, Wohn- und Schlafbereich und separatem Badezimmer mit Dusche
Darüber befindet sich noch ein Spitzboden, erreichbar über eine Einschubtreppe
KURZE AUSSTATTUNGSMERKMALE:
Bodenbeläge:
überwiegend Parkett
Vinyl in Küche 1.OG
Fliesen im Flur KG, Bäder/WC, DG
Fenster mit Rolläden
elektrische Sonnenmarkise
Jablotron-Alarmanlage.
Zum Haus gehört die nach vorn sichtbare Garage mit elektrischem Rolltor.
Weitere Baubeschreibung auf Anfrage.
Mehr anzeigen zum Thema Lage
Lage
Köln-Ostheim liegt im rechtsrheinischen Stadtbezirk Köln-Kalk. Ostheim grenzt im Osten mit den hier gemeinsam verlaufenden Bundesautobahnen 3 und 4 an die Stadtteile Neubrück und Rath/Heumar, im Süden mit der Bundesautobahn 3 an den Stadtteil Gremberghoven, mit der im Südwesten verlaufenden Bahnstrecke Köln–Siegen an den Stadtteil Humboldt/Gremberg, im Westen an Vingst und im Norden an den Stadtteil Merheim. Nur an der Kreuzung Frankfurter Straße/Vingster Ring grenzt der Ort an Höhenberg.
Der Stadtteil liegt etwa 7,5 Kilometer vom Kölner Stadtzentrum entfernt.
Zu den öffentichen Verkehrmitteln gehören die Straßenbahnlinie 9, der Bus 151 und 191.
In nur wenigen Minuten erreicht man die A4 mit dem Auto.
Der Stadtteil liegt etwa 7,5 Kilometer vom Kölner Stadtzentrum entfernt.
Zu den öffentichen Verkehrmitteln gehören die Straßenbahnlinie 9, der Bus 151 und 191.
In nur wenigen Minuten erreicht man die A4 mit dem Auto.
Mehr anzeigen zum Thema Sonstige Angaben
Sonstige Angaben
Es liegt eine Teilungserklärung vor, da das Gebäude im November 1994 bereits in 2 Einheiten (Wohnungseigentum nach MIteigentumsanteilen) zwischen den beiden Geschwistern aufgeteilt wurde.
Wohnung Nr. 1 = 90,82 m² = 501/1000stel
Wohnung Nr. 2 = 90,30 m² = 499/1000stel
Die Wohneinheit im Dachgeschoss würde sich hervorragend als "eigenes Reich" z. B. für die/den erwachsene/n Tochter/Sohn, für das Aupair-Mädchen, für Gäste, die hier oben ihr eigenes Reich haben für die Dauer ihres Aufenthaltes oder ähnliche Nutzung eignen.
Auf Wunsch senden wir Ihnen gern einen Link zu einem virtuellen 360°-Rundgang durch die Immobilie. Aber nichts ersetzt den persönlichen Eindruck und das Wohlgefühl, im richtigen Haus zu sein. Bitte vereinbaren Sie Ihren persönlichen Besichtigungstermin, gern auch am Wochenende möglich.
Wohnung Nr. 1 = 90,82 m² = 501/1000stel
Wohnung Nr. 2 = 90,30 m² = 499/1000stel
Die Wohneinheit im Dachgeschoss würde sich hervorragend als "eigenes Reich" z. B. für die/den erwachsene/n Tochter/Sohn, für das Aupair-Mädchen, für Gäste, die hier oben ihr eigenes Reich haben für die Dauer ihres Aufenthaltes oder ähnliche Nutzung eignen.
Auf Wunsch senden wir Ihnen gern einen Link zu einem virtuellen 360°-Rundgang durch die Immobilie. Aber nichts ersetzt den persönlichen Eindruck und das Wohlgefühl, im richtigen Haus zu sein. Bitte vereinbaren Sie Ihren persönlichen Besichtigungstermin, gern auch am Wochenende möglich.
Mehr anzeigen zum Thema Sonstige Angaben
Energieausweis
A+
< 30
A
30 – 50
B
50 – 75
C
75 – 100
D
100 – 130
E
130 – 160
F
160 – 200
G
200 – 250
H
> 250
- Nutzungsart
- Wohnen
- Baujahr Anlagentechnik
- 1991
- Endenergiebedarf
- 169,9 kWh/(m²a)
- Energieausweis
- Bedarfsausweis
- Energieausweis gültig bis
- 10.07.2029
- Energieeffizienzklasse
- E
- wesentlicher Energieträger
- Gas
Ihre Ansprechpartnerin
Frau Rita Oberscheid
IBD Immobilien GmbH im "Haus der Immobilie"
- Tel.:
- 02236/8928-0
- E-Mail:
- rita.oberscheid@ibd-wesseling.de
Bonner Str. 72
50389 Wesseling